
For Sale – Shell Form Apartments
3/2 Beds | 2 Baths | Optional 1 Car Garage
Ref: VC210JA
New Project in Gozo on the Market
Direct From Owner
Apartment 5 €210,000 C.Parts & Lift €10,000
3 Bedrooms / 2 Bathrooms/ Int : 114 sqm, Ext: 10 sqm
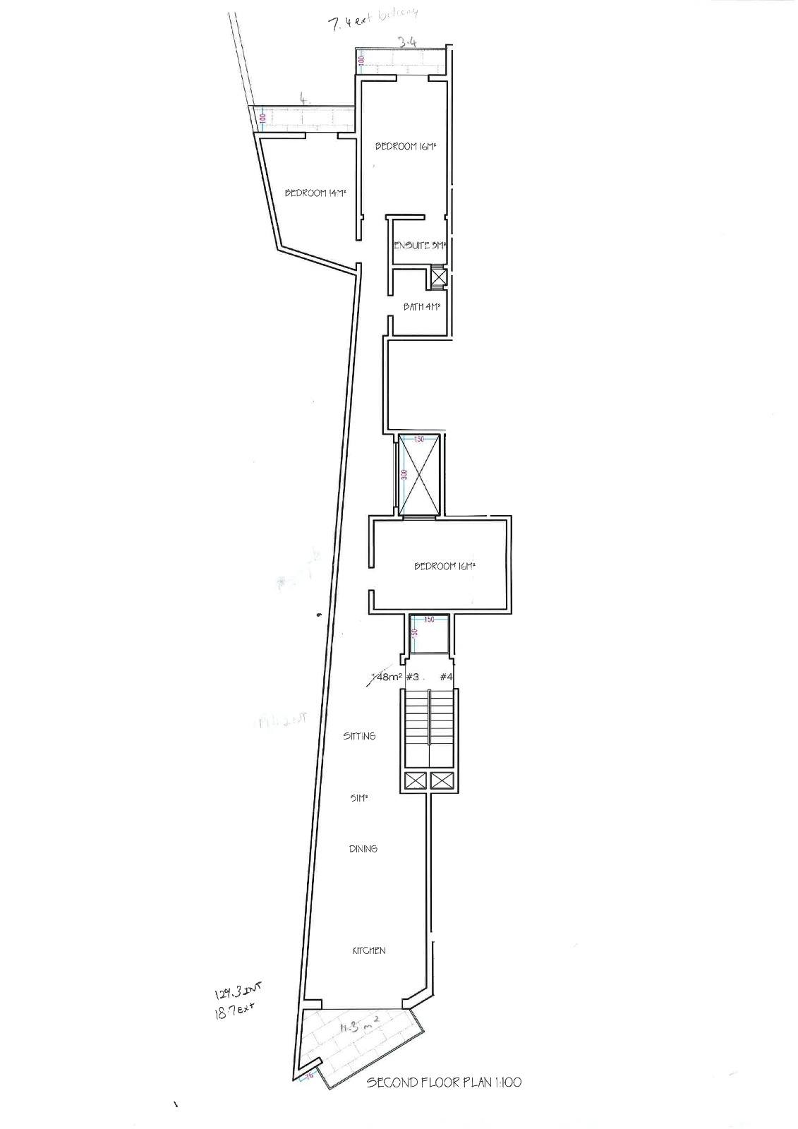
Total Area:124 sqm
Optional Finishings
Back & Front Terrace
Penthouse 7- 4 th floor- €295,000 C.Parts & Lift €10,000
2 Bedrooms + Laundry Room/ 2 Bathrooms/ Int : 96.1 sqm, Ext: 23 sqm
Total Area:119.1 sqm
Optional Finishings
Terrace
Penthouse 8- 4 th floor- €290,000 C.Parts & Lift €10,000
2 Bedrooms + Laundry Room/ 2 Bathrooms/ Int : 94.7 sqm, Ext: 18 sqm
Total Area:112.7 sqm
Optional Finishings
Terrace & Balcony
Parking space starting from 40k








